







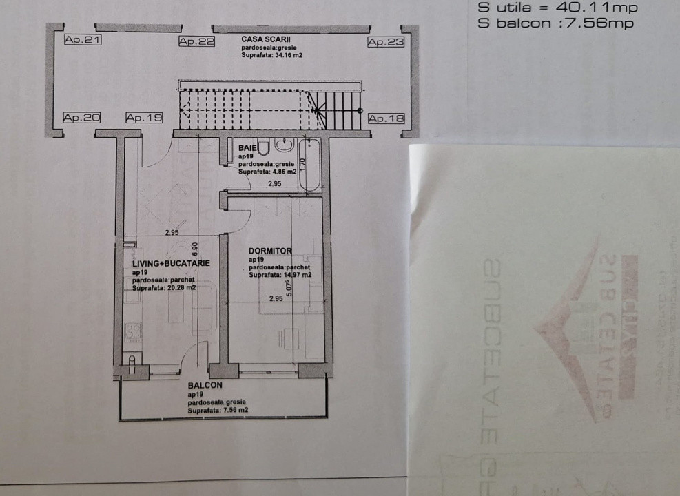
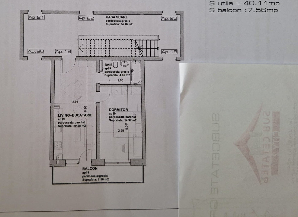
BSK Imobiliare vă propune spre achiziție un apartament cu două camere tip studio, situat în Subcetate City 1, Sânpetru, Brașov. Imobilul este situat la etajul 3 din 4 și are o suprafață utilă de 40,11 mp, la care se adaugă un balcon de 7,56 mp.
Apartamentul se vinde mobilat și utilat, gata de locuit. Este pretabil atât pentru locuință, cât și pentru investiție. În preț este inclus un loc de parcare privat, cu posibilitatea achiziției și fără loc de parcare la un cost redus.
Zona oferă multiple facilități: magazine, frizerie/coafor, cabinete medicale, cafenea, precum și acces rapid la transportul în comun. De asemenea, apartamentul este situat foarte aproape de noul Street Mall din Sanpetru.
Preț: 84.900 € negociabil.
Se acceptă plata cash sau prin credit.
Pentru mai multe informații sau programare vizionare,nu ezitați sa ne contactați!