








BSK Imobiliare va propune spre achizitie un apartament cu 2 camere tip studio, situat in ansamblul Subcetate City 2, pe Strada Marin Preda, in Sanpetru.
Imobilul este amplasat la parter, in Vila 6, fiind finalizat si disponibil imediat pentru tranzactionare.
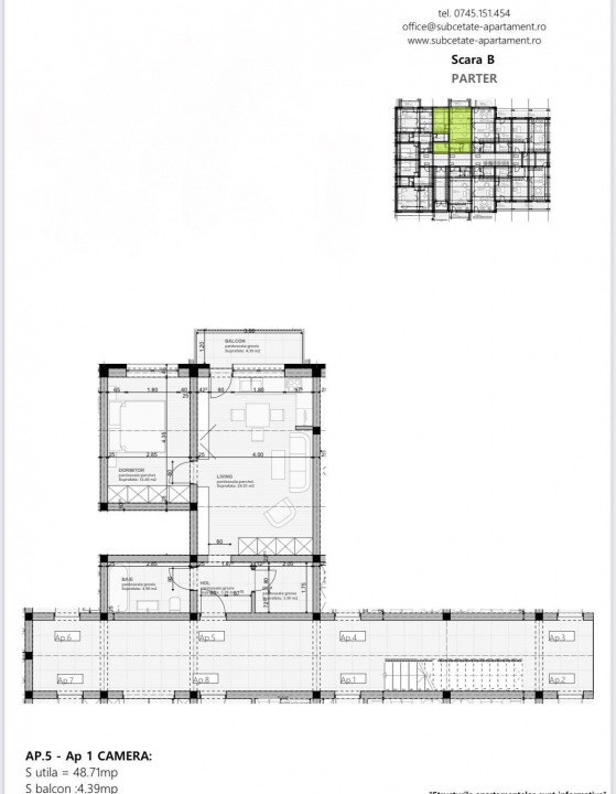
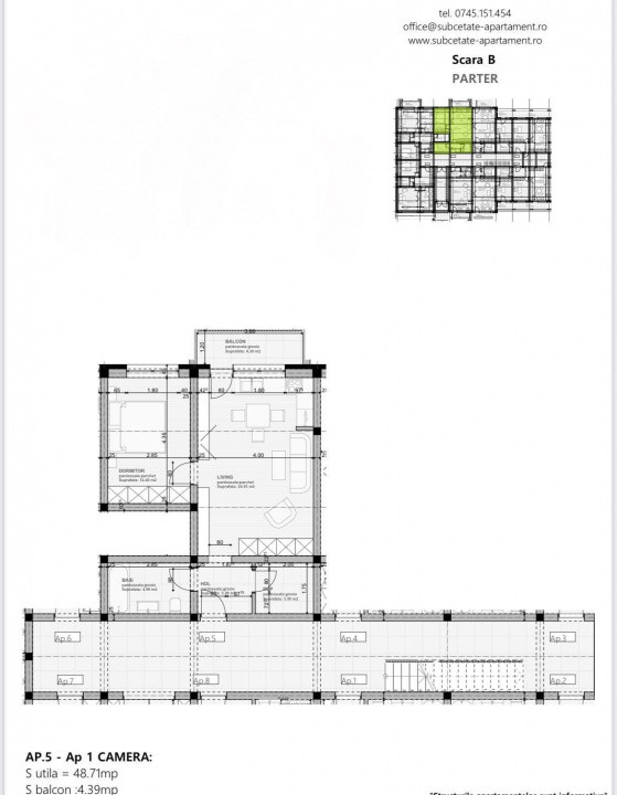
Suprafata utila: 48,71 mp
Balcon: 4,4 mp
Parcare: loc de parcare privat inclus in pret
Compartimentarea este practica si moderna: living cu bucatarie open-space, dormitor, baie, hol si dressing, oferind un plus de spatiu pentru depozitare si confort.
Locuinta beneficiaza de incalzire in pardoseala si acces facil catre magazinele din cartier si statia de autobuz.
Pret: 85.000 euro
Modalitati de plata acceptate: cash sau credit
Comision agentie: 2%
Pentru informatii suplimentare si programarea unei vizionari, va rugam sa ne contactati!